Office desk side elevation, plan and isometric view details dwg file
Description
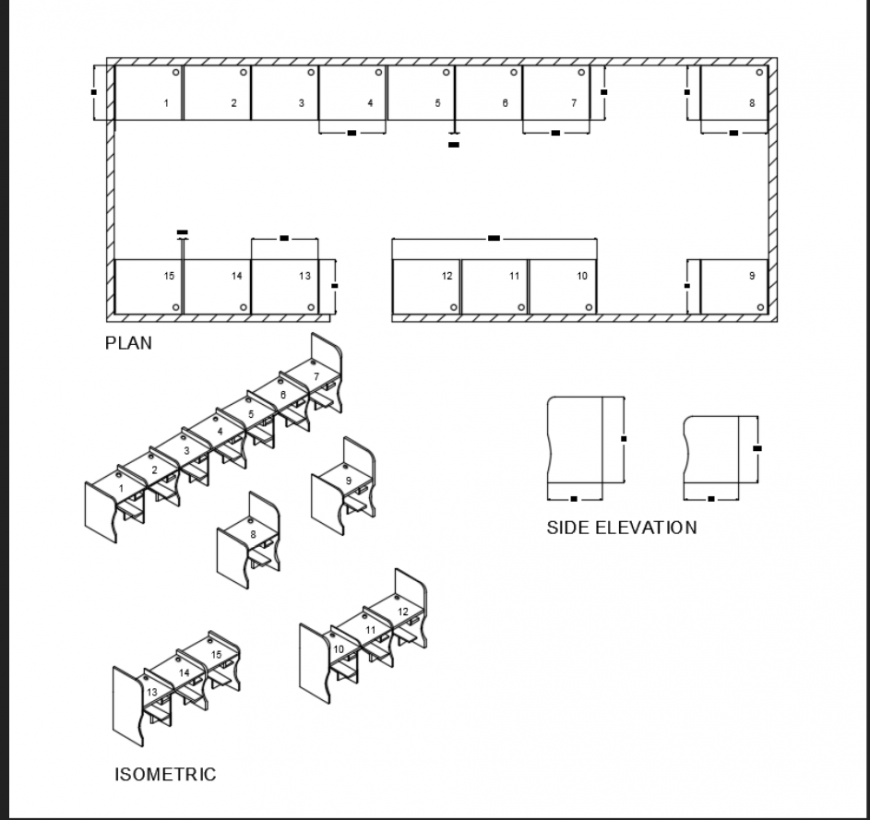
Office desk side elevation, plan and isometric view details that includes a detailed side elevation view of wooden office desk, isometric view, plan view, dimensions view and much more of desk details.
Uploaded by:
Eiz
Luna

