House building section constructive details with roof dwg file
Description
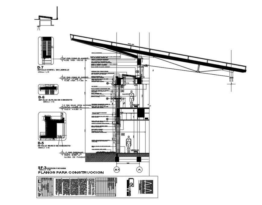
House building section constructive details with roof that includes a detailed view of flooring view, wall construction, memory of materials, footings details, column view, beam construction, covers closure type 1 and 2, soil burried wall closure type 1 and 2, exterior solera, holes, interior partition, granite veneer of the country with steel supports, halfeneisen type, Brick partition, 8cm, plaster plastering 1cm, Concrete wall 15cm and much more of section details.
Uploaded by:
Eiz
Luna

