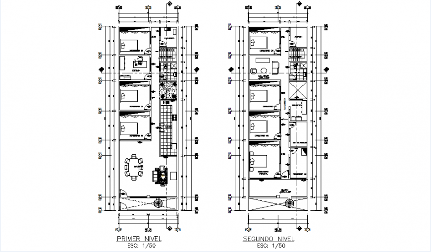
First floor and second-floor house plan

First floor and second-floor house plan
Profile

Uploaded by:

Eiz

Luna

Description

First floor and second-floor house plan, centre line plan detail, dimension detail, naming detail, scale 1:50 detail, furniture detail in the door, window, cub board, bed, and sofa detail, spiral stair detail, door and window numbering detail, section lien detail, etc.

Profile

Uploaded by:

Eiz

Luna

find Latest

Related Files

WhatsApp Chat