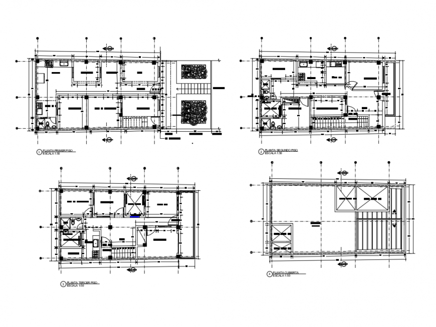
Ground, first, second floor plan layout details with terrace of house cad drawing details dwg file
Description
Ground, first, second floor plan layout details with terrace of house cad drawing details that includes a detailed view of ground floor, first floor and terrace with main entry door, mini garden, car parking view, drawing room, living room, family hall, kitchen, dining area, indoor staircases, laundy area, balcony, bedroom, master bedroom, toilets and bathroom, indoor doors, furniture details and much more of house floor plan.
Uploaded by:
Eiz
Luna

