CAD layout plan of office building units dwg autocad file
Description
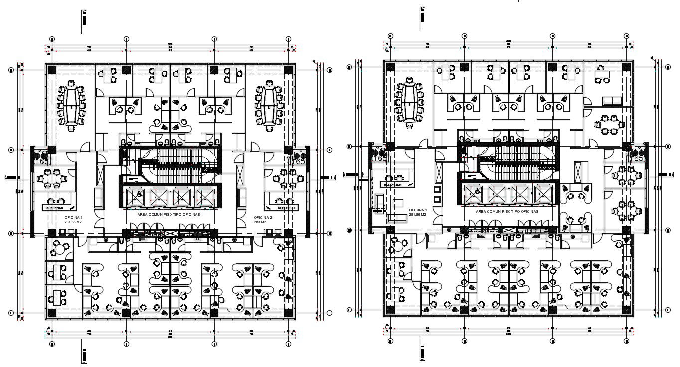
CAD layout plan of office building units dwg autocad file that shows work floor detail plan of building along with floor level detail with furniture layout detail in building. Dimension hidden line detail room cabins details also included in drawings.
File Type:
DWG
File Size:
2.4 MB
Category::
Interior Design
Sub Category::
Corporate Office Interior
type:
Gold

Uploaded by:
Eiz
Luna

