AutoCAD File of Shopping Mall for Floor Planning and Layout files
Description
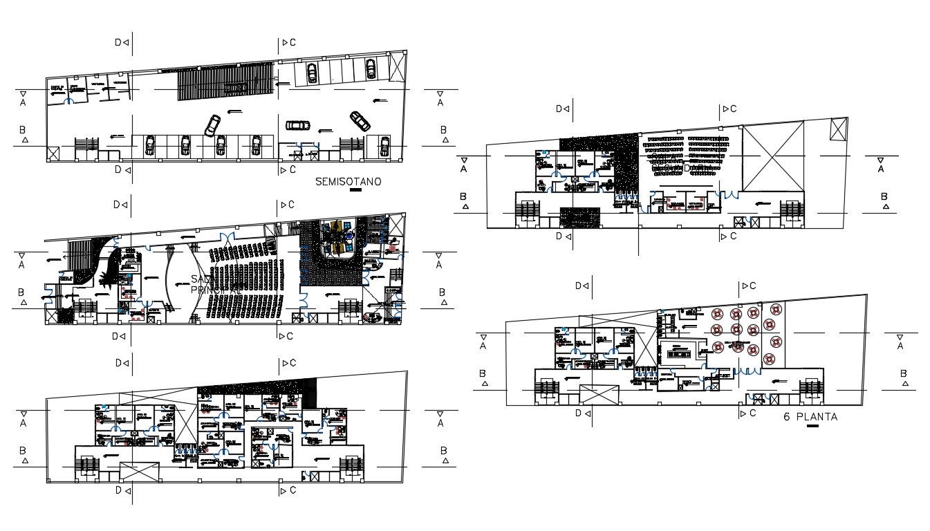
Shopping Mall CAD File; the cad file of Shopping center Some floor plans which are related to the theater with backside changing area, hotel, terrace garden, offices, and other services. parking layout, entry passages and exit passage for theater, admin area on upper floor, restaurant with attached kitchen and toilet service, some floor is used as a offices .open blocks.
Uploaded by:
Rashmi
Solanki

