1 bhk House Plan Drawing

1 bhk House Plan Drawing
Profile

Uploaded by:

akansha

ghatge

Description
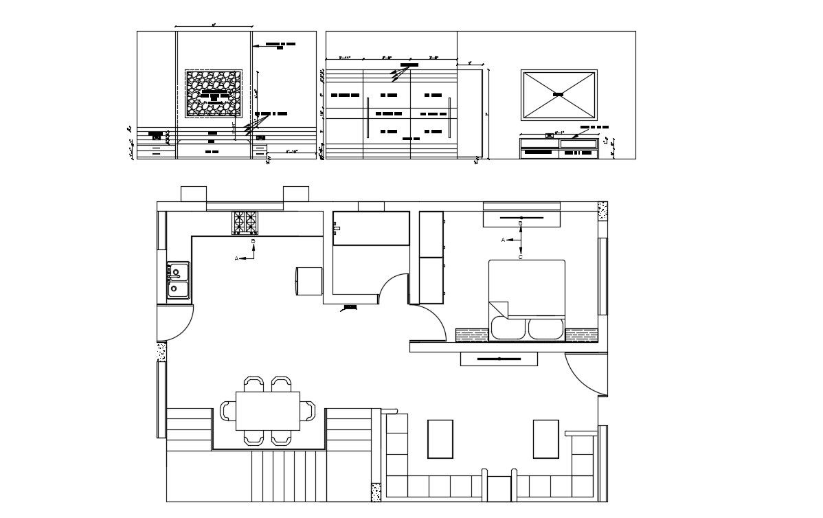
House design plan download CAD file that shows house plan and elevation details along with furniture details in the house, room details of house, floor level, and various other details.
Profile

Uploaded by:

akansha

ghatge

find Latest

Related Files

WhatsApp Chat