Bungalow House Design With Floor Plan AutoCAD File
Description
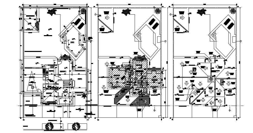
Bungalow House Design With Floor Plan AutoCAD File Free; detail plan of the lavish bungalow with furniture layout, parking, plantation, working dimension, some level detail all floor plan CAD file.
Uploaded by:
Rashmi
Solanki

