Detailed Commercial Complex Floor Plan with Center Line CAD files
Description
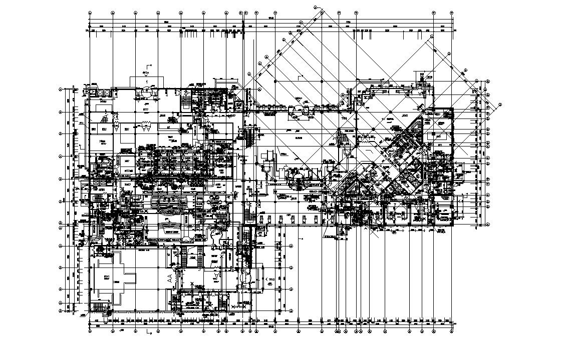
Commercial Complex Floor Plan With Center Line AutoCAD File; detail drawing of a commercial building with the centerline, working drawing dimension, furniture layout, electric plan DWG file.
Uploaded by:
Rashmi
Solanki

