Download Pond Water Purification System AutoCAD Drawing
Description
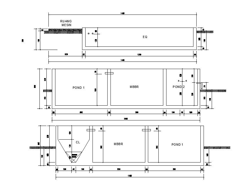
Download Pond Water Purification System AutoCAD Drawing; this is the simple R,C,C wall section area for machine of Water Purification, both side water collecter area in middle MBBR pit space with working dimension also includes CL machine area, its a CAD file.
File Type:
DWG
File Size:
149 KB
Category::
Dwg Cad Blocks
Sub Category::
Autocad Plumbing Fixture Blocks
type:
Free
Uploaded by:
Rashmi
Solanki

