Banquet Hall Layout DWG File for Seating Stage and Interior Design
Description
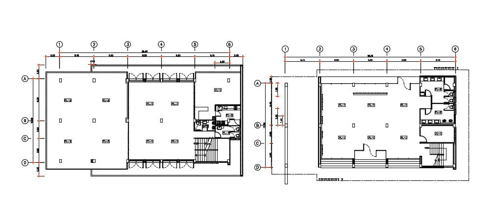
Banquet hall showing detailed seating, stage, entrances, and interior layout. Architects and designers can use it for accurate project planning, visualization, and integration into building designs. The editable DWG file allows modifications for customized layouts and precise documentation.
Uploaded by:
Rashmi
Solanki

