Free Download Commercial Building Wall Section Design AutoCAD File
Description
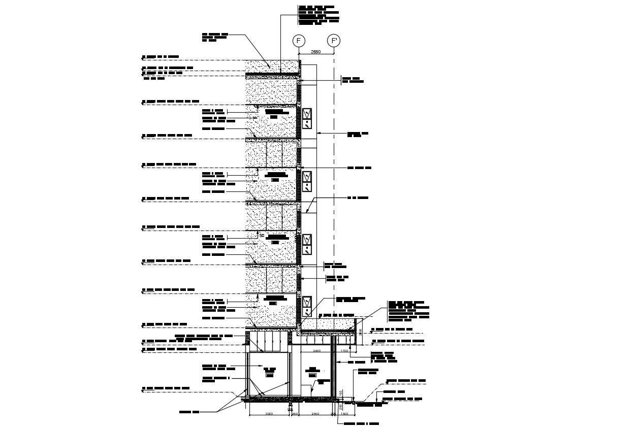
Free Download Commercial Building Wall Section Design AutoCAD File; this is the detail of the wall section includes floor level detail, texting detail, centerline in the elevation, hatching, window detail, and much more detail related to wall section, this is the CAD file format.
Uploaded by:
Rashmi
Solanki

