2D House Electrical And Plumbing Layout Plan AutoCAD Drawing Details
Description
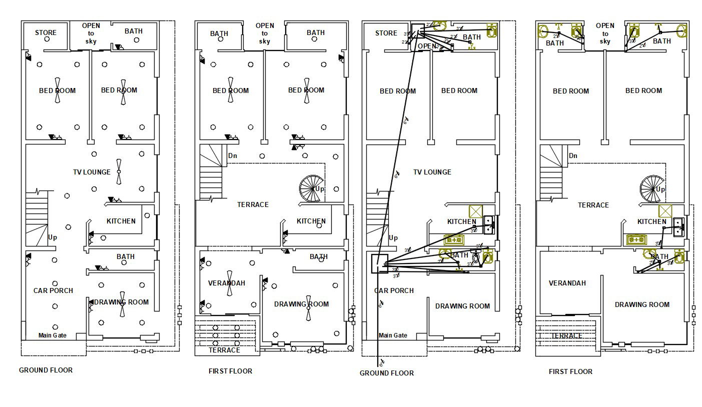
This 2D house layout AutoCAD file includes detailed electrical and plumbing plans for residential projects. The CAD drawing file offers precise placement of wiring, switches, pipelines, and fixtures. Designers and engineers can use this DWG file to plan installations, ensure compliance with standards, and integrate layouts seamlessly into architectural designs. Perfect for creating error-free residential layouts and optimizing construction workflows efficiently.
Uploaded by:

