2d Water Storage Tank Design Layout Pluming Construction Block CAD File Download
Description
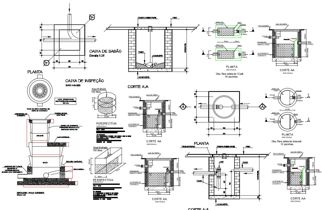
CAD drawing details of water storage tank design that shows RCC water tank depth and water storage capacity details along with storage tank outlet pipe blocks, pipe fixtures, dimension working set, storage tank sectional view, and various other plumbing blocks details download AutoCAD drawing file for detailed presented work.

Uploaded by:
akansha
ghatge

