Public Washroom Design Layout Plan Elevation and Sectional AutoCAD Drawing Download
Description
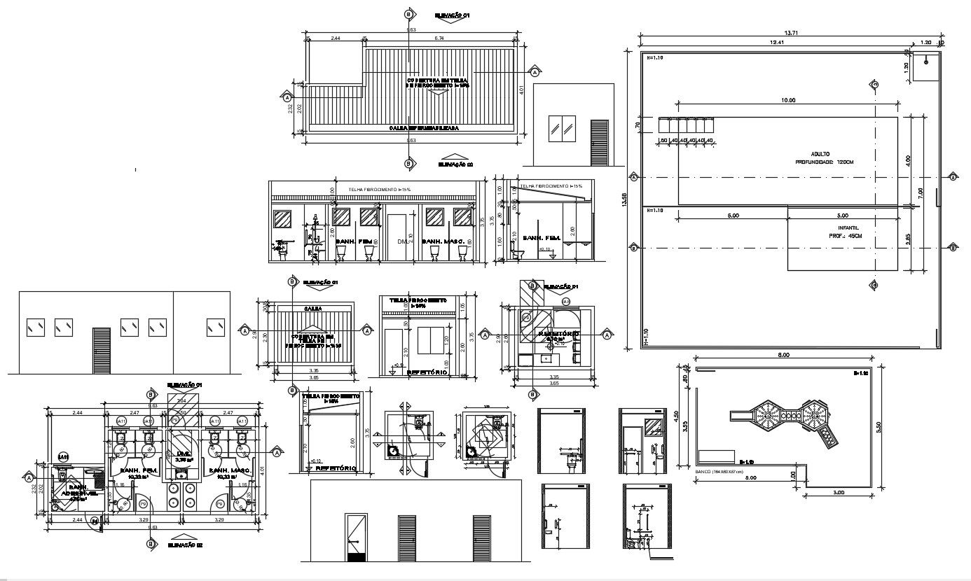
CAD drawing details of sanitary public restroom design layout plan that shows the different sizes of bathroom units details along with sanitary blocks details of washbasin, water closet, plumbing blocks, door ventilation blocks and various others. Restroom elevations and sectional details are also shown in AutoCAD file download file for detailed design.
File Type:
DWG
File Size:
396 KB
Category::
Interior Design
Sub Category::
Architectural Bathrooms And Interiors
type:
Gold

Uploaded by:
akansha
ghatge

