28'x57' Wonderful East Facing 3BHk House Plan As Per Vasthu Shastra, Cad and Pdf File Details
Description
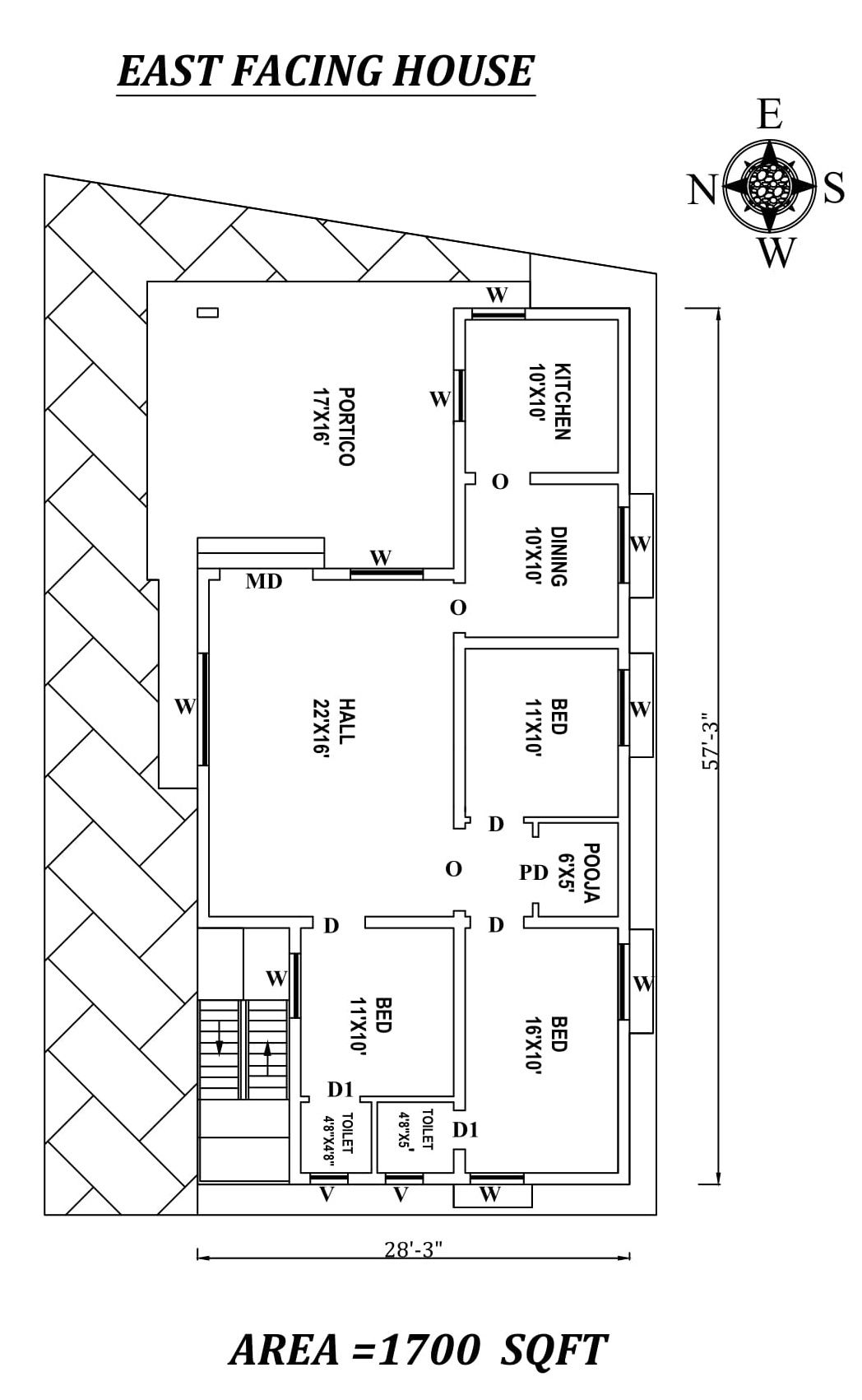
Autocad Drawing file shows 28'x57' Wonderful East Facing 3BHk House Plan As Per Vasthu Shastra. The total buildup area of this house is 1700 sqft. The kitchen is in the southeast direction. Dining near the kitchen is in the south direction. The puja room is in the south. The Hall Placed in the Northeast direction. The master bedroom available in the southwest direction with the attached toilet is in the west direction. kid's bedroom is in the Northwest direction with the attached toilet available in the northwest direction. The guest bedroom is available in the south direction. A staircase is available in the northwest outside of the house. Portico is available in the northeast direction of the house. Download Autocad Drawing file and PDF file.

Uploaded by:
AS
SETHUPATHI

