Electrical And Plumbing Design Of Residential Building AutoCAD
Description
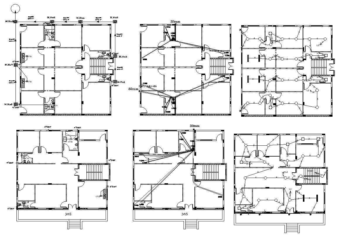
this is the drawing of many floor plans with toilet and kitchen plumbing design, electrical layout plan of all floors, plumbing pipes marking details in plan.this is the residential house details.
File Type:
DWG
File Size:
131 KB
Category::
Dwg Cad Blocks
Sub Category::
Autocad Plumbing Fixture Blocks
type:
Free
Uploaded by:
Rashmi
Solanki

