Electrical And Plumbing Layout Plan Of 2 BHK House Project
Description
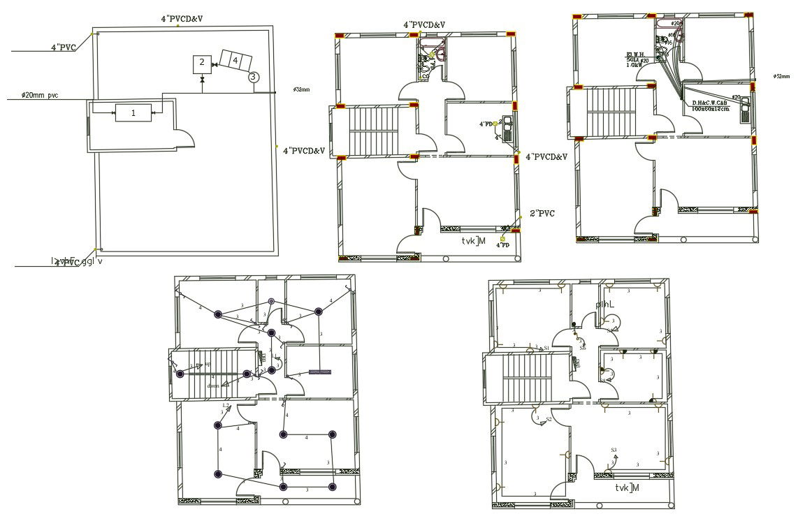
1280 sq ft architecture 2 BHK house plan ground floor plan design includes electrical and wiring layout plan design that shows ceiling light with wiring plan and pipeline detail which is connected to toilet and kitchen. download 32 by 40 feet house electrical and plumbing plan DWG file.
Uploaded by:

