4 BHK House Plumbing Layout Plan AutoCAD File
Description
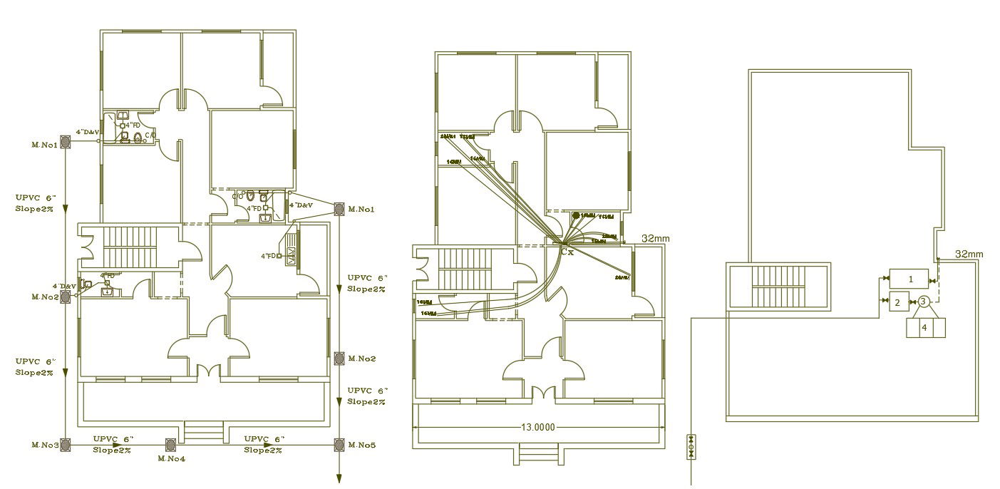
AutoCAD drawing of 42 by 65 house ground floor plan with plumbing layout plan design that shows water pipe line connected kitchen to toilet and drainage pipe line detail which is goes one by one to chamber and directly connected to public manhole. download 4 BHK house plumbing layout plan design DWG file.
Uploaded by:

