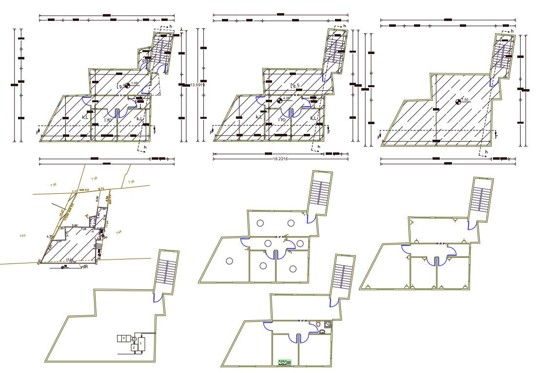
2?BHK House Floor Plan with Site Plot in DWG Format
Description
2d CAD drawing of architecture residence house floor plan design that shows 2 bedrooms, kitchen, and drawing room. also has electrical layout plan with where to install switches, permanently mounted light and chimes. download 2 BHK house plan design and get more detail of sanitary ware design.
Uploaded by:

