32 X 64 House Plan AutoCAD File (2048 Square Feet)
Description
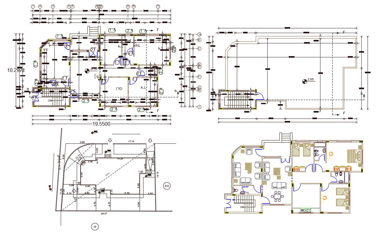
32 by 64 feet house ground floor furniture layout plan that shows the contains spacious 3 bedrooms, living room, kitchen, and drawing rooms. The Bedroom in the plan has an attached 2 toilet and one of the common toilets is attached to the living area for guests. download architecture house plan design DWG file and get more detail of master plan with 1 big car parking space and compound wall design.
Uploaded by:

