Construction detail
Profile

Uploaded by:

Liam

White

Description
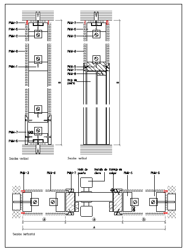
This Construction detail in section side elevation & plan design in the file.
Profile

Uploaded by:

Liam

White

find Latest

Related Files

WhatsApp Chat