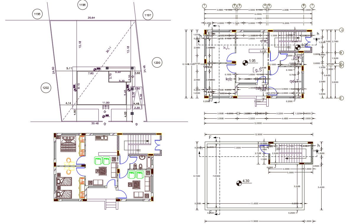
26 X 42 Ft AutoCAD House Plan Design
Description
26' X 42' architecture AutoCAD house ground floor plan and terrace plan design CAD drawing that shows column layout plan, center line plan and the master plan with 1 big car parking space. (121 square yards) download 2 BHK house furniture layout plan design DWG file.
Uploaded by:

