21'11"x45'3" Single bhk East facing House Plan As Per Vastu Shastra,Autocad DWG and Pdf file details
Description
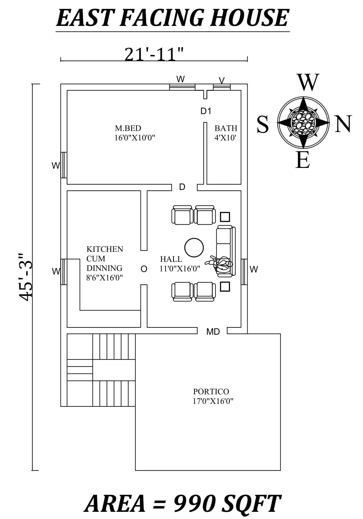
Autocad Drawing file shows 21'11"x45'3" Single bhk East facing House Plan As Per Vastu Shastra. The total buildup area of this house is 990 sqft. The kitchen cum dining is in the Southeast direction. The Hall Placed in the Northeast direction. The master bedroom available in the southwest direction with the attached toilet is in the northwest direction. A staircase is available on the southeast outside of the house. Portico is available in the northeast direction of the house. Download Autocad Drawing file and PDF file.

Uploaded by:
AS
SETHUPATHI

