33'X66' The Perfect 2bhk west-facing House Plan As Per Vastu Shastra,Autocad DWG and Pdf file details.
Description
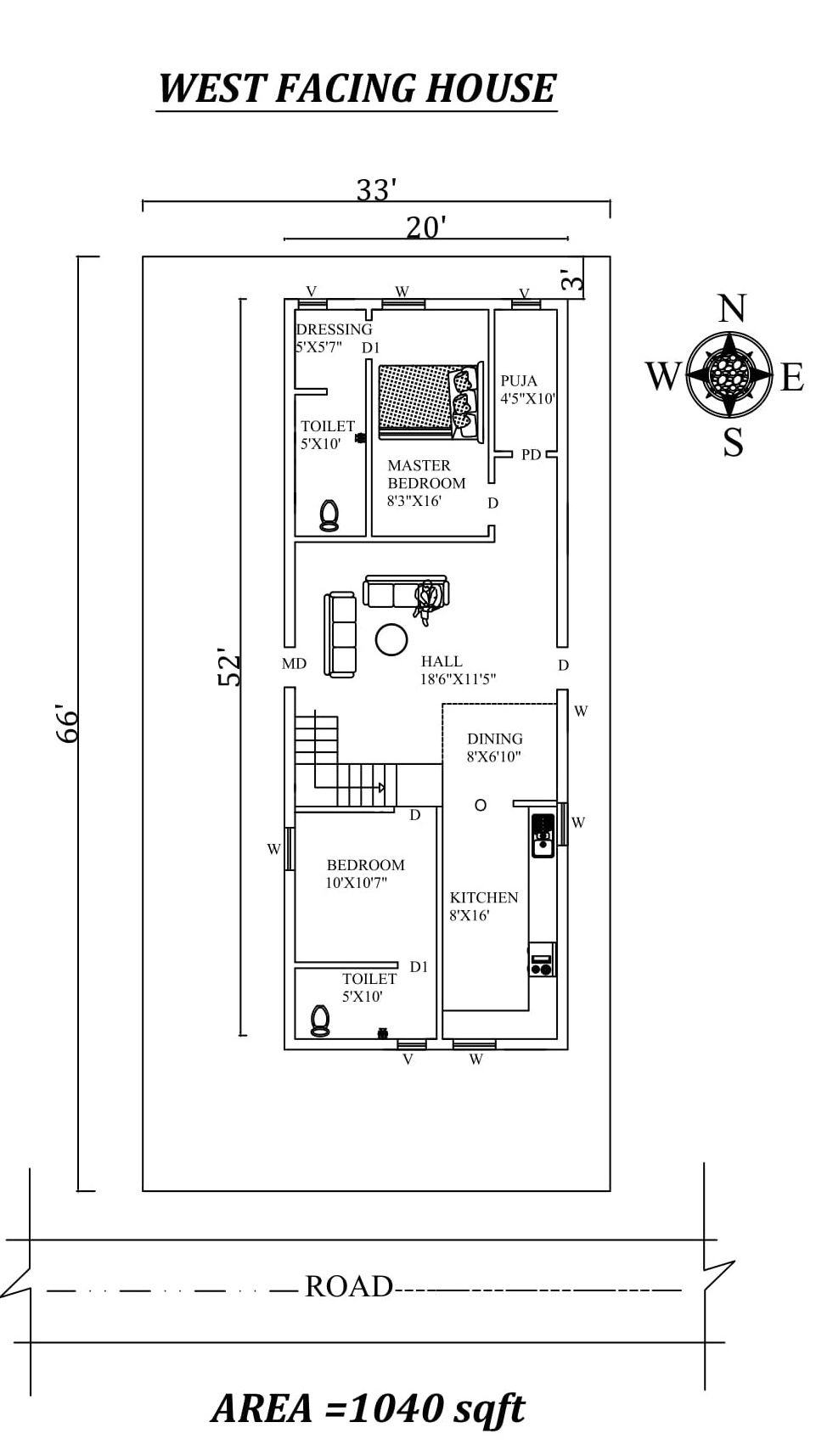
Autocad Drawing file shows 33'X66' The Perfect 2bhk west-facing House Plan As Per Vastu Shastra. The total buildup area of this house is 1040 sqft. The kitchen is in the Southeast direction. Dining near the kitchen is in the East direction. The living area is available in the center of the house. The master bedroom is available in the north direction with the attached toilet is in the northwest direction. kid's bedroom is in the west direction with the attached toilet is in the southwest direction. The puja room is in the northeast. A staircase is available in the west Direction inside of the house. The road is Available in the south direction. Download Autocad Drawing file and PDF file.

Uploaded by:
AS
SETHUPATHI

