21'6"X75' Single bhk West facing First floor House Plan As Per Vastu Shastra.Autocad DWG and Pdf file details.
Description
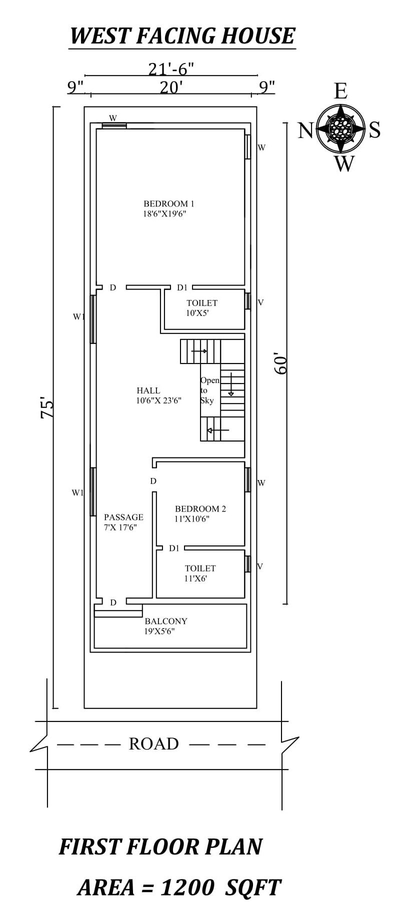
Autocad Drawing file shows 21'6"X75' Single bhk West facing First floor House Plan As Per Vastu Shastra. The total buildup area of this house is 1200 sqft. The Hall is available in the center of the house. The Master bedroom is available in the South direction with the attached toilet is in the southwest direction. The Guest bedroom is in the Southeast direction with the attached toilet is available in the south. A staircase is available in the south inside of the house. Portico/car parking is available in the west direction of the house. Road Available in the west direction.Download Autocad Drawing file and PDF file.

Uploaded by:
AS
SETHUPATHI

