30'X 51' 2bhk Awesome South facing House Plan As Per Vastu Shastra. Autocad DWG and Pdf file details.
Description
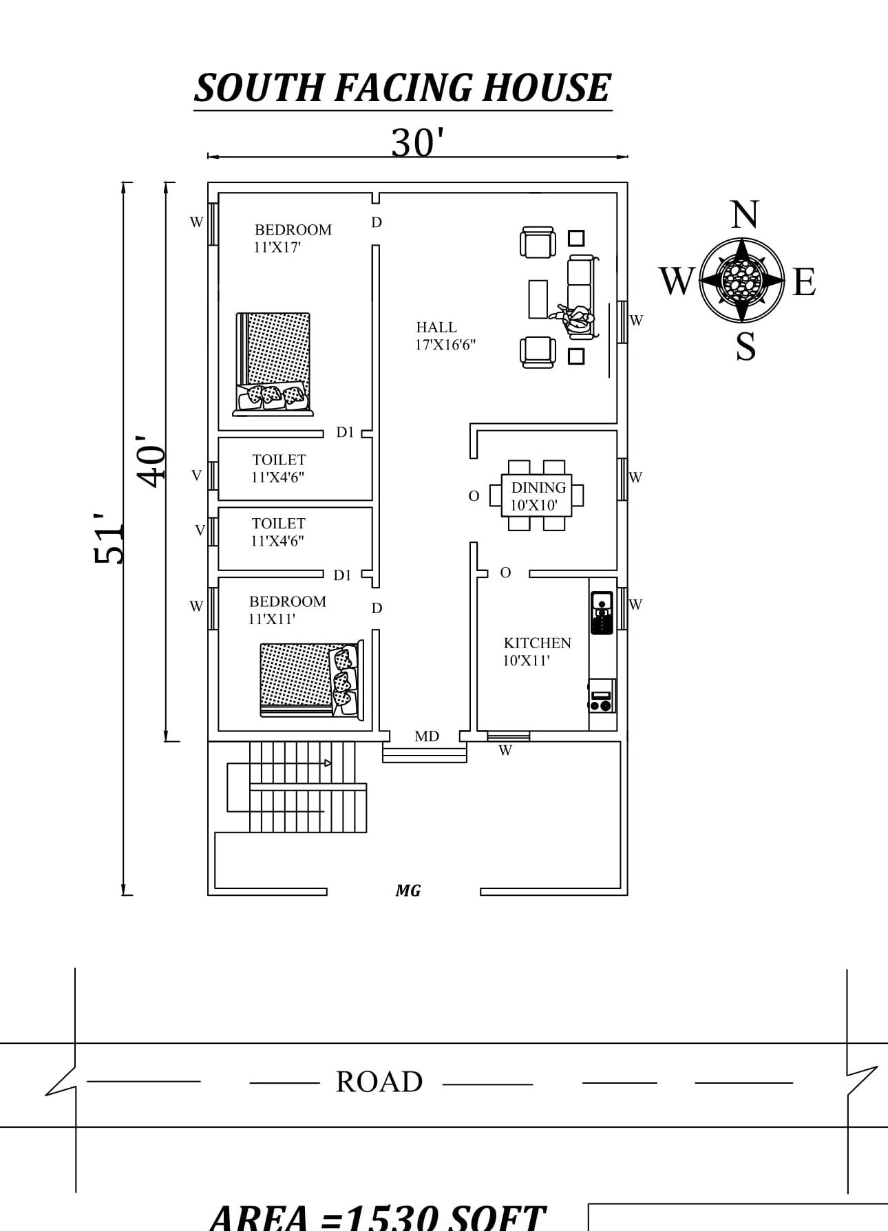
Autocad Drawing file shows 30'X 51' 2bhk Awesome South facing House Plan As Per Vastu Shastra. The total buildup area of this house is 1530 sqft. The kitchen is in the Southeast direction. Dining near the kitchen is in the east direction. The Hall Placed in the northeast direction. The master bedroom is available in the southwest direction with the attached toilet is in the west. The kid's bedroom is in the Northwest direction with the attached toilet is in the west. A staircase is available in the southwest outside of the house. The common toilet is available in the southwest direction under stairs. Road Available in the South direction.Download Autocad Drawing file and PDF file.

Uploaded by:
AS
SETHUPATHI

