21'6"X88'6" West facing Ground floor House Plan As Per Vastu Shastra,Autocad DWG and Pdf file details.
Description
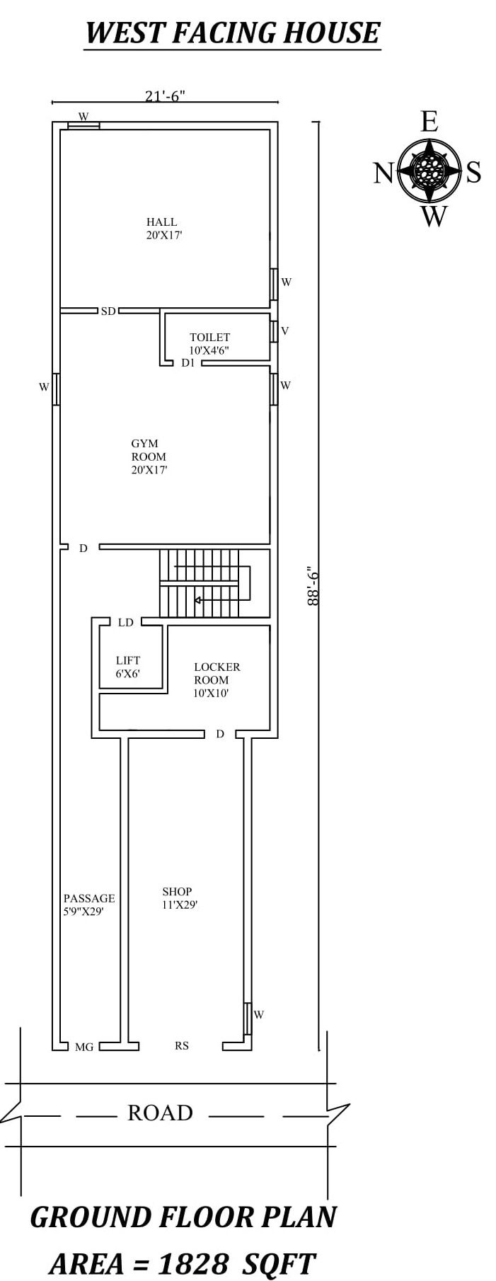
Autocad Drawing file shows 21'6"X88'6" West facing Ground floor House Plan As Per Vastu Shastra. The total buildup area of this house is 1828 sqft. The shop is in the Southwest direction. The gym is in the south direction. The toilet is in the south. The Hall is available in the south direction. A staircase is available in the south inside of the house. Road Available in the west direction.Download Autocad Drawing file and PDF file.

Uploaded by:
AS
SETHUPATHI

