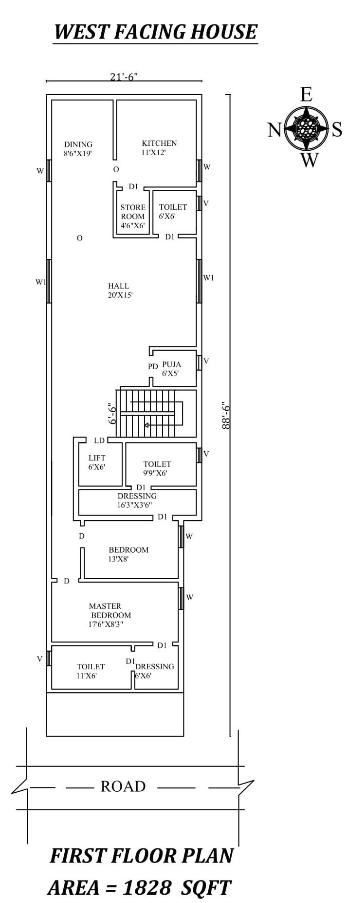
21'6" X88'6" Marvelous 2bhk West facing House Plan As Per Vastu Shastra,Autocad DWG and Pdf file details.

21'6" X88'6" Marvelous 2bhk West facing House Plan As Per Vastu Shastra,Autocad DWG and Pdf file details.
Profile

Uploaded by:

AS

SETHUPATHI

Description
Autocad Drawing file shows 21'6" X88'6" Marvelous 2bhk West facing House Plan As Per Vastu Shastra. The total buildup area of this house is 1828 sqft. The kitchen is in the Southeast direction. The dining near the kitchen is in the northeast. The storeroom is in the west. The puja room is in the south. The Hall is Placed in the south direction of the house. The master bedroom is available in the south direction with the attached toilet available in the southwest direction. kid's bedroom is in the south direction with the attached toilet available in the south direction. A staircase is available on the south inside of the house. Download Autocad Drawing file and PDF file.
Profile

Uploaded by:

AS

SETHUPATHI

find Latest

Related Files

WhatsApp Chat