G plus 2 House Plan AutoCAD File with Detailed Floor and Section Views
Description
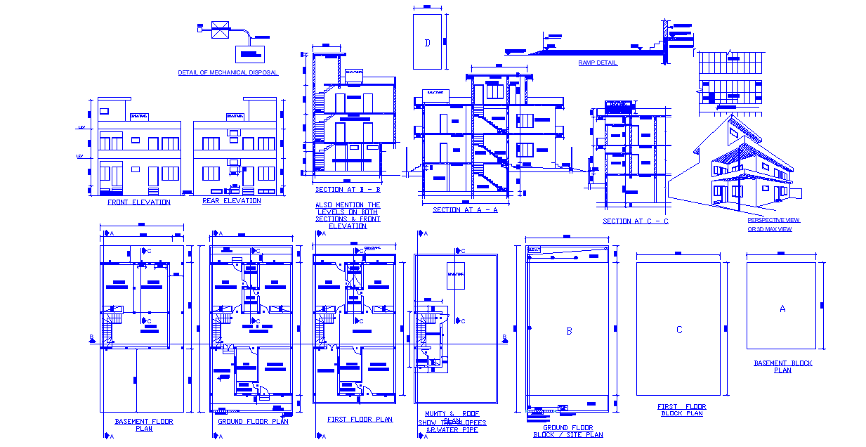
Detailed blueprint of a G+2 residential house with floor plans, sectional views, and structural dimensions. Architects and engineers can use this AutoCAD file to plan room layouts, elevations, and staircases accurately. The drawing provides all technical details, wall placements, and measurements necessary for professional execution. It ensures precise visualization, optimized construction planning, and seamless integration into residential building projects for designers and builders.

Uploaded by:
AS
SETHUPATHI

