3 Bedroom Duplex house plan DWG Autocad file Available,Download it.
Description
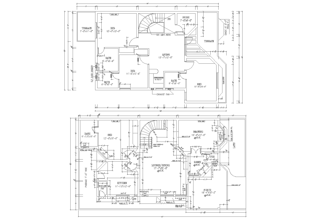
Autocad G+1 house plan drawing layout available in this DWG file. On the ground floor, the kitchen, dining, drawing room, master bedroom with attached toilet, lounge, common toilet, lobby, and the porch is available. The staircase is placed inside of the house. On the first floor, three-bedroom with the attached toilet, storeroom, kitchen, balcony and terrace area are available. Download the DWG file.

Uploaded by:
AS
SETHUPATHI

