DWG file of the G+1 2BHK house plan drawing layout available. Download the DWG file.
Description
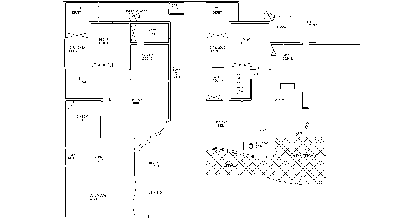
Autocad DWG file of the G+1 house plan drawing layout available. On the ground floor, the kitchen, dining, lounge, master bedroom with attached toilet, kid's bedroom with attached toilet, lobby, and the porch is available. The staircase is placed inside of the house. On the first floor, master bedroom with attached toilet, Kid's bedroom with attached toilet, store, lounge and terrace is available. Download the DWG file.

Uploaded by:
AS
SETHUPATHI

