15'X55' five different ideas of single BHK House plan with a shop in front AutoCAD DWG file. Download the file.
Description
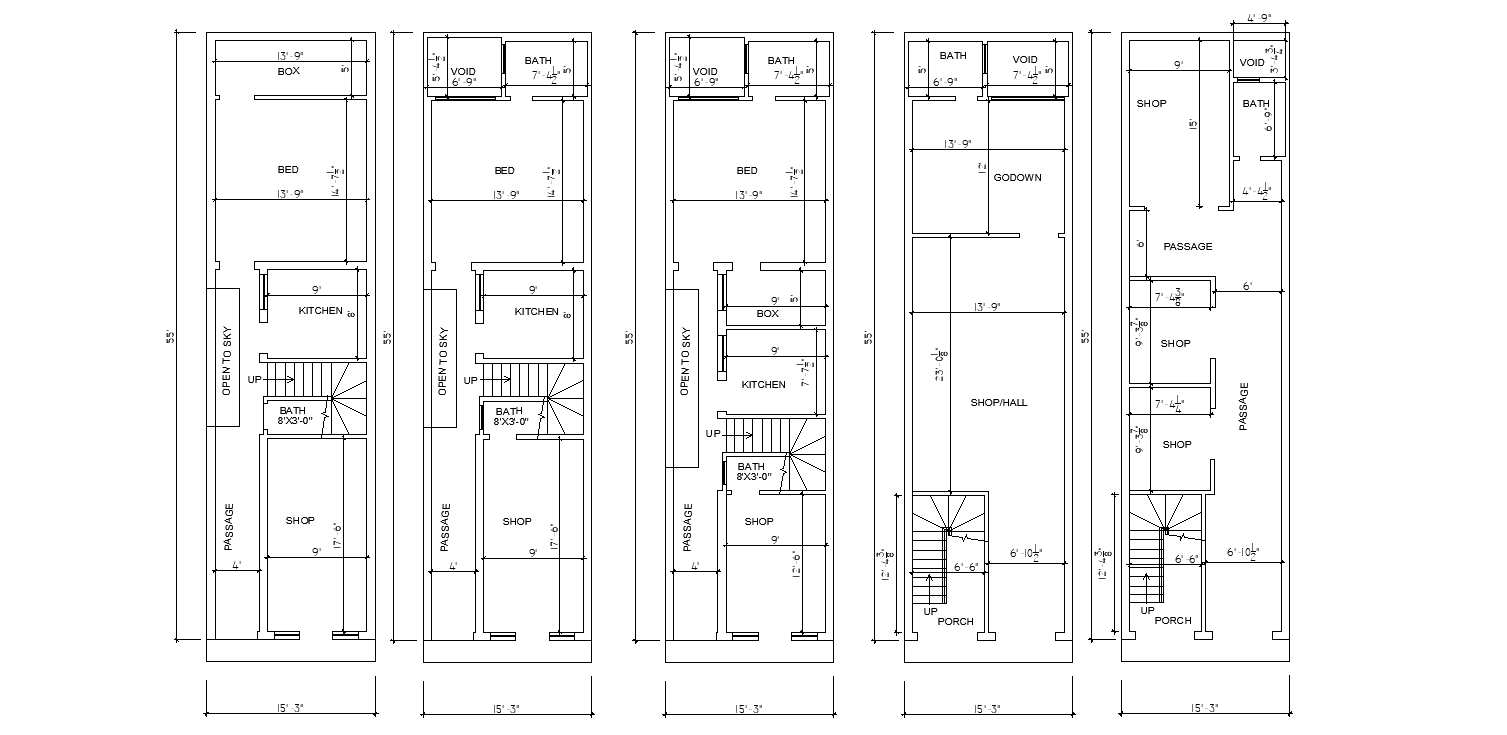
15'X55' five different types of single BHK House plan with a shop in front AutoCAD DWG file. In all five plans building area is the same, room allocation and room sizes vary. In all plans master bedroom with attached toilet, Kitchen, are available. the shop is the available front of the house. The Staircase is placed inside of the house. Download the AutoCAD Drawing file.

Uploaded by:
AS
SETHUPATHI

