House Construction Center Line Plan With Site Plot Design
Description
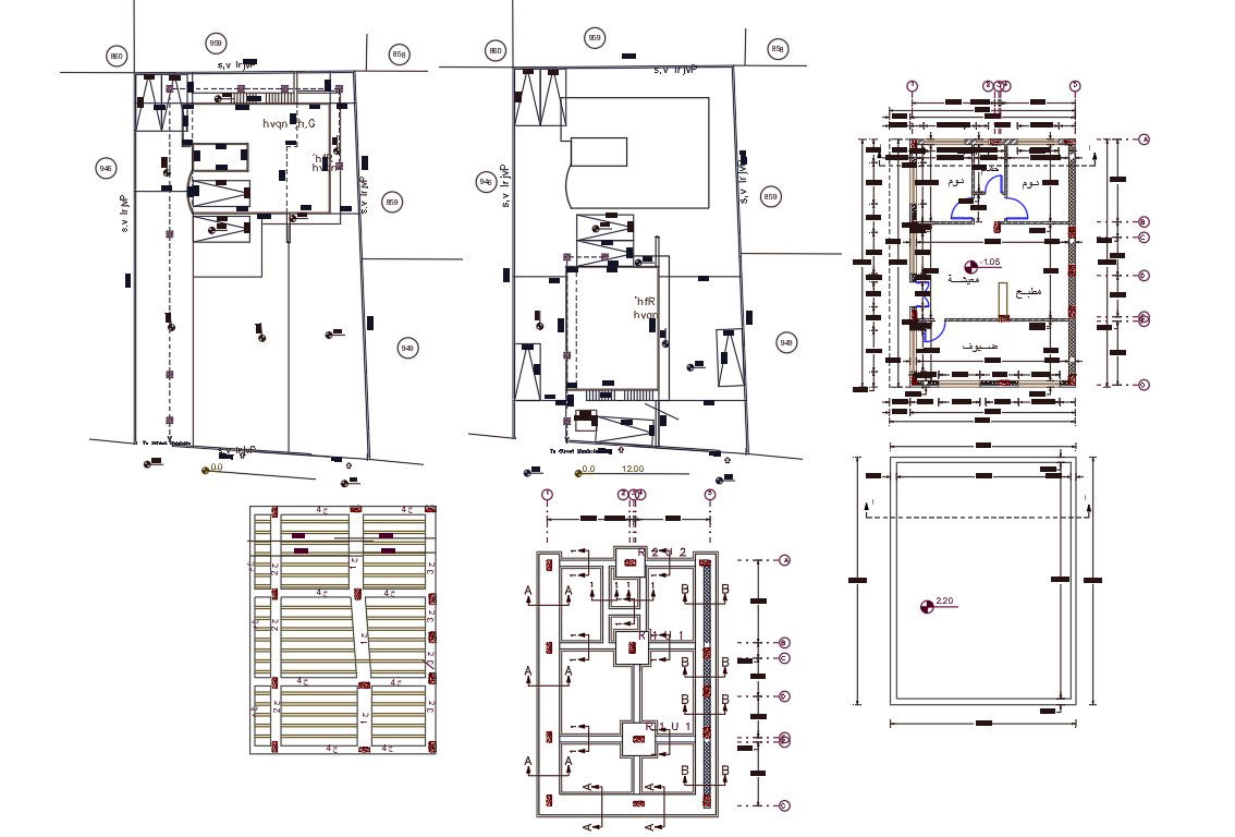
9 X 12 meter architecture house construction center line plan design that shows column footing foundation plan, slab bar structure design, floor layout and terrace plan with dimension detail. download house plan with site plot detail DWG file.
Uploaded by:

