Ground Floor And First Floor House Sample Plan AutoCAD File
Description
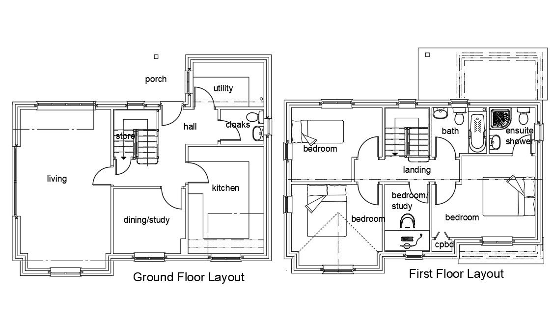
The architecture AutoCAD sample house drawing ground floor and first floor plan that shows 3 bedrooms, bathroom with ensuite shower,kitchen, dining area, hall, store room, and lining room design. download 2 storey house plan design DWG file.
Uploaded by:

