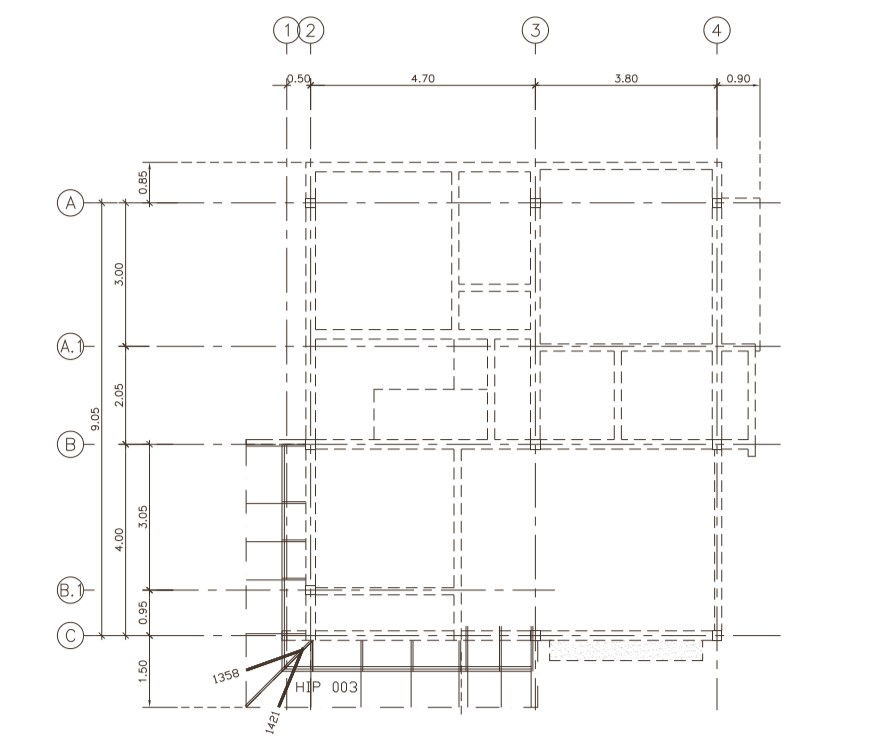
The AutoCAD drawing file shows the details of the reinforcement top roof section plan.Download the DWG file.
Description
The AutoCAD drawing file shows the details of the reinforcement top roof section plan. A detailed section plan is given in this drawing file. Reinforcement rebar details are given in this drawing file. The scale is given in the ratio of 1:25. The sectional plan is clearly mentioned with dimensions in this drawing file. Download the DWG file.
File Type:
DWG
File Size:
366 KB
Category::
Structure
Sub Category::
Section Plan CAD Blocks & DWG Drawing Models
type:
Gold

Uploaded by:
AS
SETHUPATHI

