North Facing House Plan With Center line Column Layout Plan AutoCAD File
Description
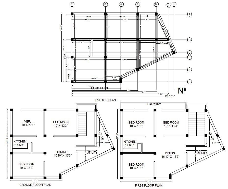
AutoCAD file drawing shows column beam plan with center line detail also has ground floor and first floor plan has 2 BHK and 3 BHK plan design. download 10' X 13' size of bedrooms house plan and dimension detail. download north facing dwelling plan design DWG file.
Uploaded by:

