4 Stories "Press Club" Elevation and Floor Plans

4 Stories "Press Club" Elevation and Floor Plans
Profile

Uploaded by:

Ashraful

Amin

Description
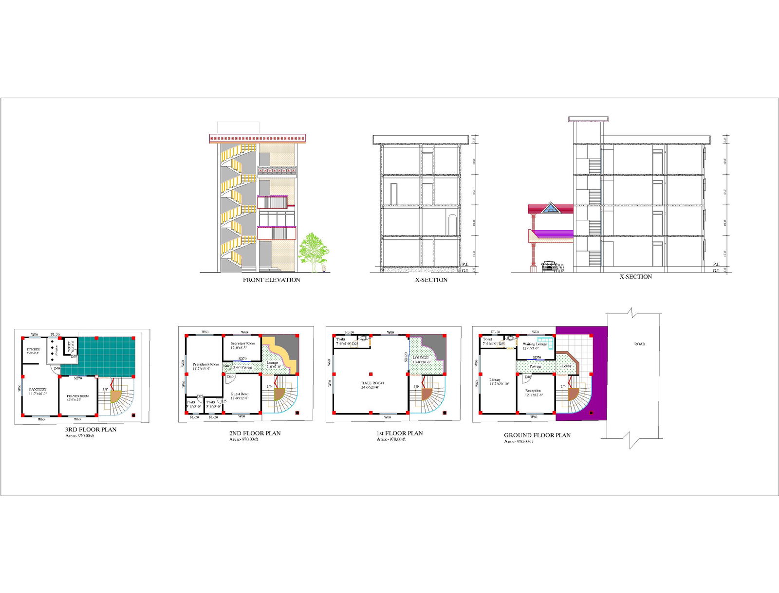
4 Stories "Press Club" Elevation and Floor Plans 1 Side Section X 1 Front X Section front Side Outer Plans: 1 Nos Semi Cercular Stair and 1 nos of Belcony, Ground for Parking. Ground Floor: 1 nos Lobby, 1 nos Passages, 1 nos Waiting Lounge, 1 nos Library, 1 nos Receotion, 1 nos Toilet with hand wash room. 1st Floor: 1 nos Lounge, 1 nos Hall room, 1 nos Toilet with hand wash room. 2nd Floor: 1 nos Lounge, 1 nos Secretary room, 1 nos Presidens room with attached toilet, 1 nos Guest room attached toilet. 3rd Floor: 1 huge Lounge, 1 nos Kitchen room, 1 nos Canteen room, 1 nos Prayer/ Stock room, 1 nos Toilet with hand wash room.
Profile

Uploaded by:

Ashraful

Amin

find Latest

Related Files

WhatsApp Chat