Hospital Layout Plan CAD Drawing DWG File
Description
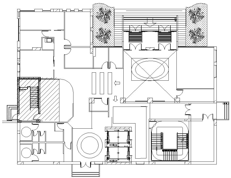
2d CAD drawing of ground floor hospital layout plan design which consist staircase, entrance main ramping design, toilet, reception area, and doctor consulting room design. download hospital plan AutoCAD file.
Uploaded by:

