AutoCAD DWG drawing files Shows the detail of the partial section plan of the Staircase. Download the DWG file.
Description
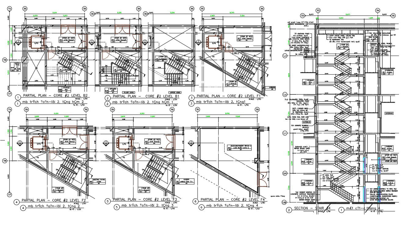
AutoCAD DWG drawing files Shows the detail of the partial section plan of the Staircase. This file shows a side elevation and the partial plan of the staircase .structure with staircase riser and treads details. Riser height and tread width details are also shown in the drawing. Download the DWG file.
File Type:
Autocad
File Size:
521 KB
Category::
Structure
Sub Category::
Section Plan CAD Blocks & DWG Drawing Models
type:
Gold

Uploaded by:
AS
SETHUPATHI

