AutoCAD DWG file shows two types of 2BHK G+1 House plan AutoCAD DWG file,Download the AutoCAD Drawing file.
Description
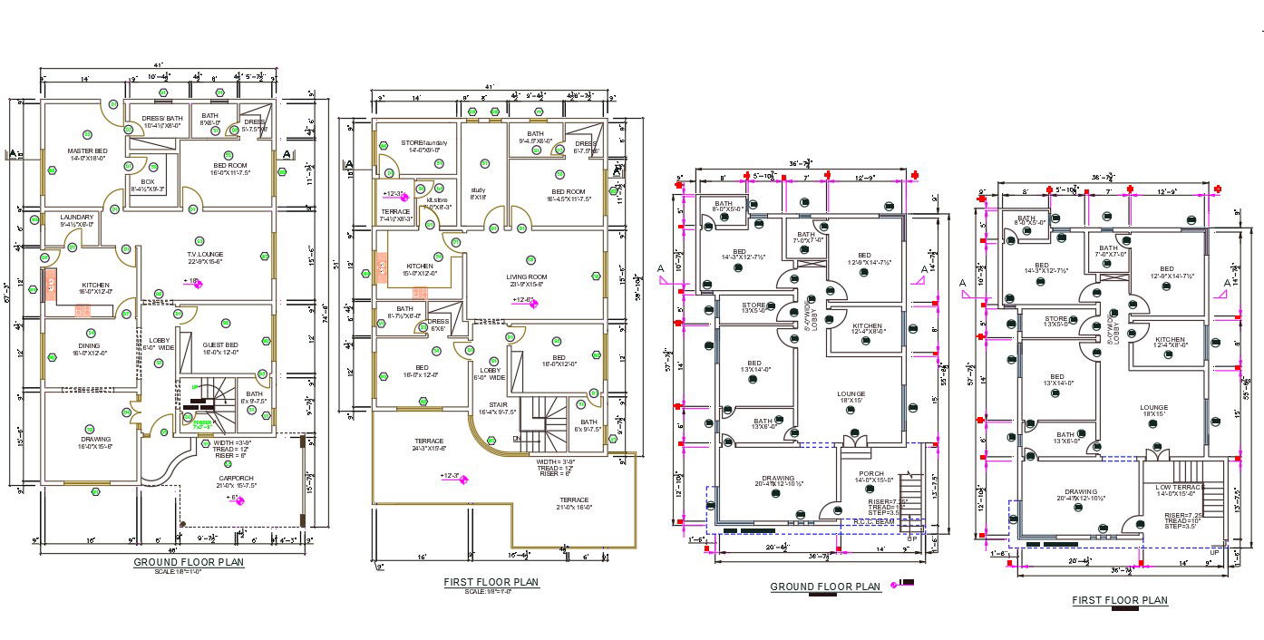
AutoCAD DWG file shows two types of 2BHK G+1 House plan AutoCAD DWG file. In those 2 plans building area is the same, room allocation and room sizes vary. In all plans master bedroom with attached toilet, Drawing room, Kitchen, Dining, TV Lounge, porch, and Lawn are available. The Staircase is placed inside of the house. Download the AutoCAD Drawing file. Thank you so much for Downloading AutoCAD DWG 2d files from our website.

Uploaded by:
AS
SETHUPATHI

