CAD file showing the standard practice details of the RC structure.Download the AutoCAD DWG file.
Description
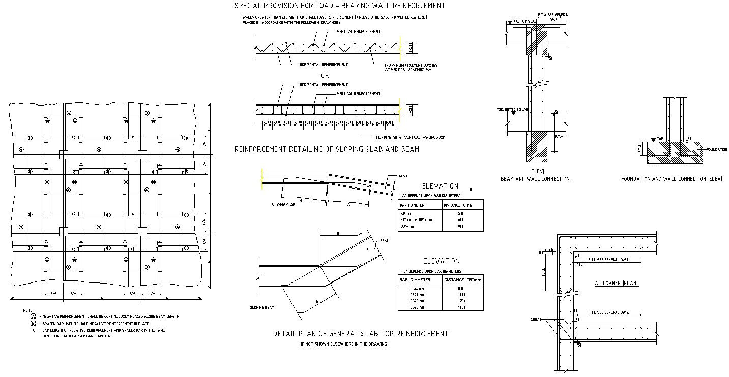
CAD file showing the standard practice details of the RC structure. Sectional details are clearly given in this drawing file. Also Location plan available in this DWG file. Download the AutoCAD DWG file. Thank you so much for downloading DWG file from our website
File Type:
DWG
File Size:
115 KB
Category::
Structure
Sub Category::
Section Plan CAD Blocks & DWG Drawing Models
type:
Gold

Uploaded by:
AS
SETHUPATHI

