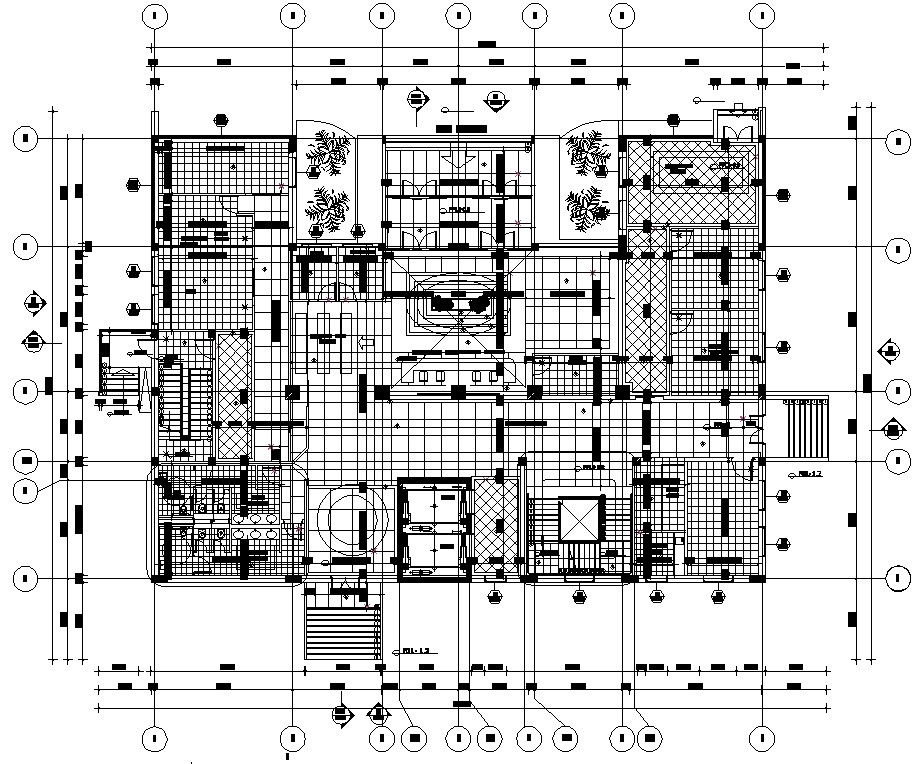
Autocad 2D DWG file of single-story Ground floor Furniture house plan,Download Autocad DWG file.

 Autocad 2D DWG file of single-story Ground floor Furniture house plan,Download Autocad DWG file.
Profile

Uploaded by:

AS

SETHUPATHI

Description
Autocad 2D DWG file of single-story Ground floor Furniture house plan .In this furniture house plans Master bedroom with the attached toilet, Children's bedroom with the attached toilet, lounge, Lawn, common toilet, porch, Drawing room, Kitchen is available. bed, dining table, stove, fridge, sofa are the furniture blocks are available. The Staircase is available inside of the house. Download Autocad DWG file.
Profile

Uploaded by:

AS

SETHUPATHI

find Latest

Related Files

WhatsApp Chat