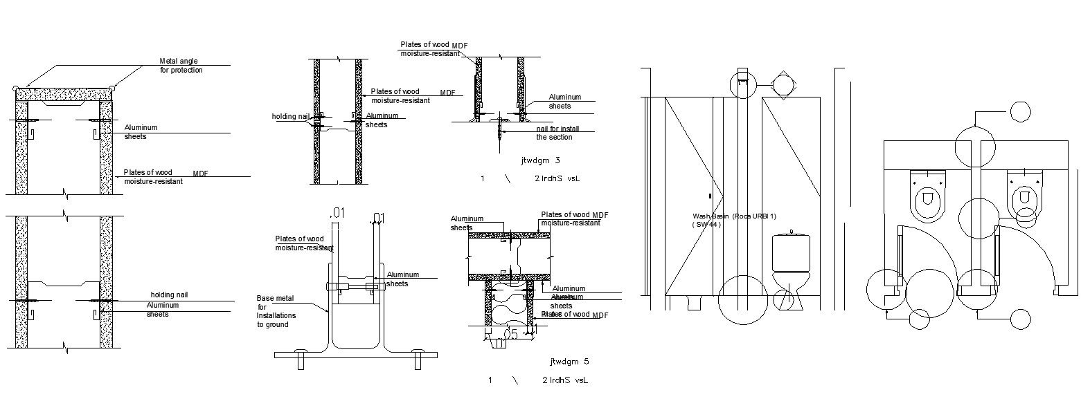
CAD Drawing file shows the details of the toilet room sectional drawing,Download the AutoCAD DWG file.

CAD Drawing file shows the details of the toilet room sectional drawing,Download the AutoCAD DWG file.
Profile

Uploaded by:

AS

SETHUPATHI

Description
CAD Drawing file shows the details of the toilet room sectional drawing. elevation and section layout details are clearly given in this drawing file. Also, the section plan available in this DWG file. Download the AutoCAD DWG file. Thank you so much for downloading DWG file from our website
Profile

Uploaded by:

AS

SETHUPATHI

find Latest

Related Files

WhatsApp Chat