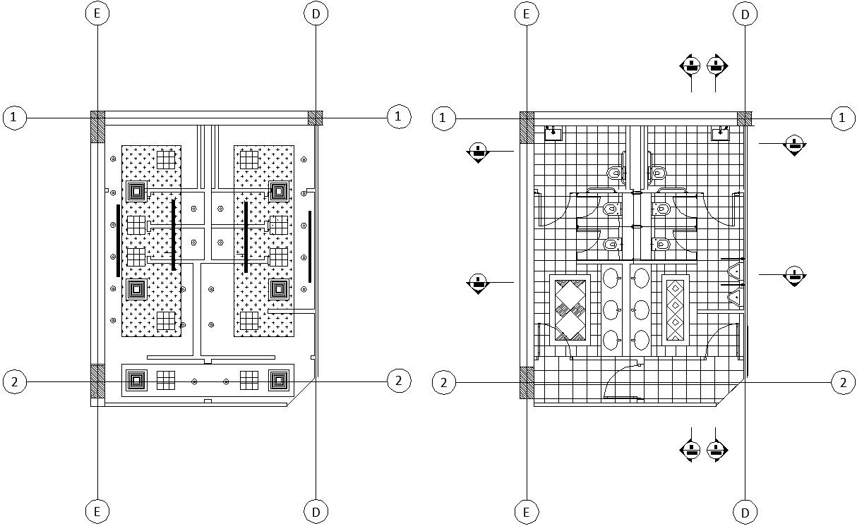
AutoCAD Drawing file shows the details of the public toilet room sectional drawing. Download the AutoCAD DWG file.
Description
AutoCAD Drawing file shows the details of the public toilet room sectional drawing. elevation and section layout details are clearly given in this drawing file. Also, the section plan available in this DWG file. Download the AutoCAD DWG file. Thank you so much for downloading DWG file from our website
File Type:
DWG
File Size:
2.6 MB
Category::
Structure
Sub Category::
Section Plan CAD Blocks & DWG Drawing Models
type:
Gold

Uploaded by:
AS
SETHUPATHI

