40 X 60 Feet Plot Size For House Layout Plan AutoCAD File
Description
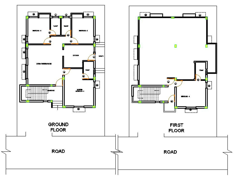
40' X 60' plot size of house ground floor and first floor layout plan drawing includes 4 bedrooms, kitchen, dining area cum living room, and huge space of open to sky terrace space. also has door window marking detail. the additional drawing such as description detail for easy to understand this project. download 2400 Square Feet House layout Plan DWG File.
Uploaded by:

