G+11 Hotel building front elevation details are given in this AutoCAD DWG 2D drawing.Download the AutoCAD DWG file.
Description
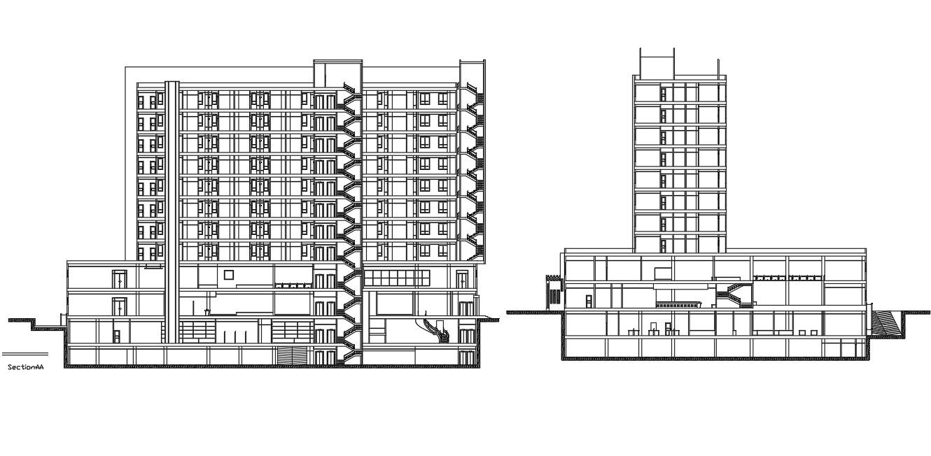
G+11 Hotel building front elevation details are given in this AutoCAD DWG 2D drawing. Sectional details are clearly given in this drawing file. Also, the door, window view, carparking, staircase section details, and balcony view are available in this DWG drawing plan. Download the AutoCAD DWG file. Thank you so much for downloading the DWG file from the cadbull website.
File Type:
3d max
File Size:
288 KB
Category::
Structure
Sub Category::
Section Plan CAD Blocks & DWG Drawing Models
type:
Gold

Uploaded by:
AS
SETHUPATHI

