Ramp section details are given in this AutoCAD DWG drawing.Download the AutoCAD 2D DWG file.
Description
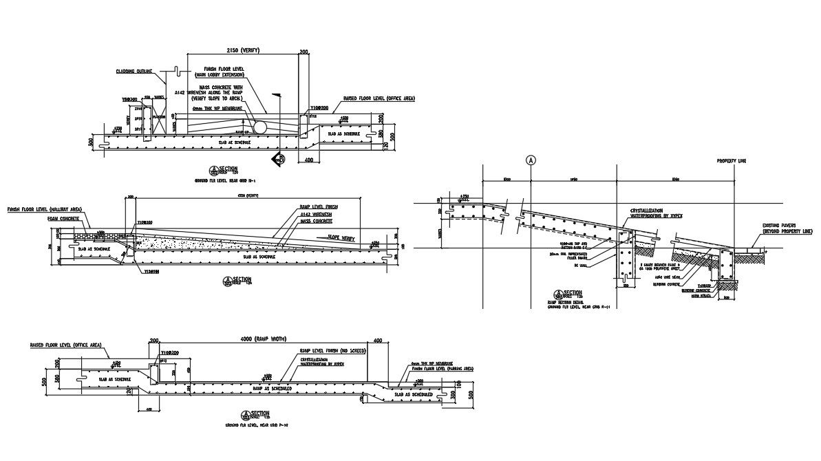
Ramp section details are given in this AutoCAD DWG drawing. The slab section plan is clearly given in this drawing file. The reinforcement detailed slab section plan is given in this DWG file. Download the AutoCAD 2D DWG file. Thank you so much for downloading DWG file from our website
File Type:
DWG
File Size:
134 KB
Category::
Structure
Sub Category::
Section Plan CAD Blocks & DWG Drawing Models
type:
Gold

Uploaded by:
AS
SETHUPATHI

