DWG Drawing file of the college building floor plan and section details are given. Download the AutoCAD 2D DWG file.
Description
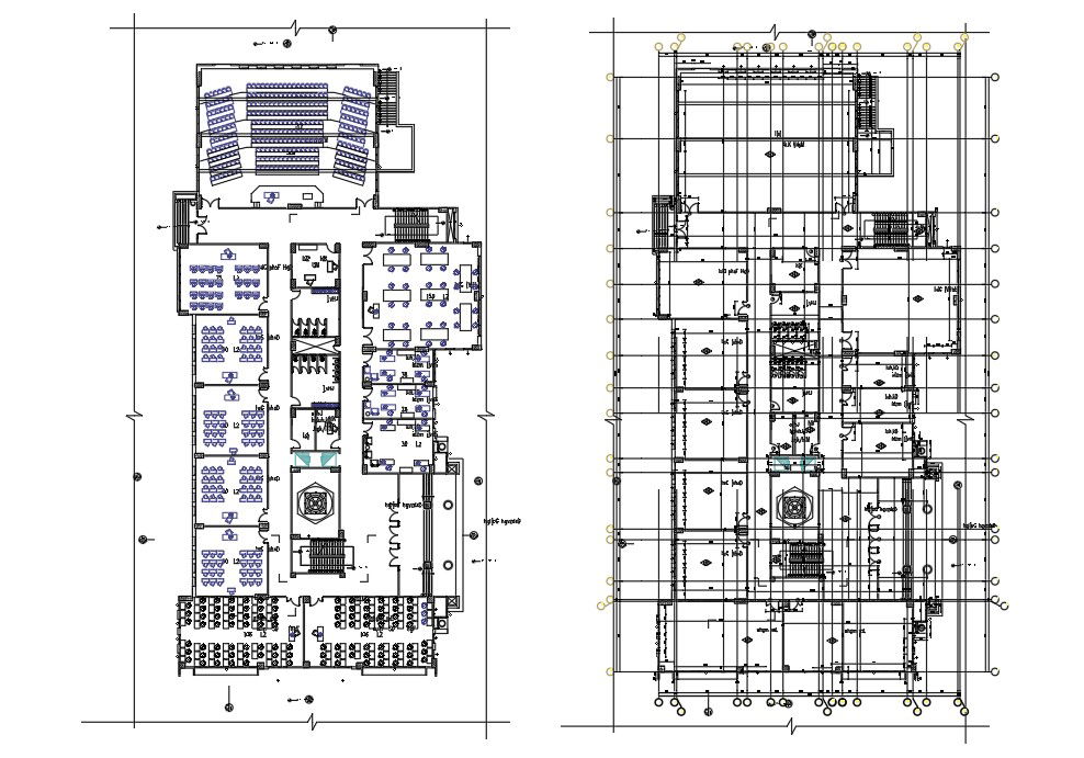
DWG Drawing file of the college building floor plan and section details are given. Sectional details are clearly given in this drawing file. The college building floor plan diagram is given in this DWG file. classrooms, toilet, staff room, principal room are mentioned. Download the AutoCAD 2D DWG file. Thank you so much for downloading DWG file from our website
File Type:
DWG
File Size:
606 KB
Category::
Structure
Sub Category::
Section Plan CAD Blocks & DWG Drawing Models
type:
Free

Uploaded by:
AS
SETHUPATHI

