Longitudinal and cross-section and elevation design of the G+2 Residential Building are available in this AutoCAD DWG drawing file. Download Now.
Description
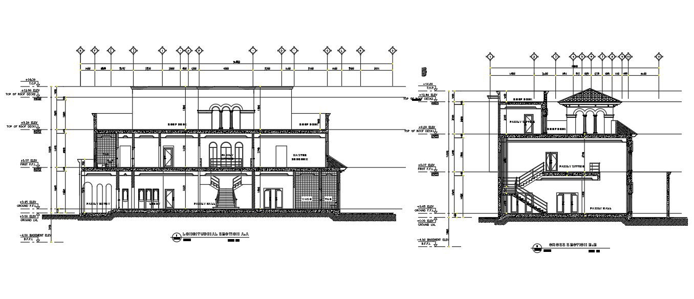
Longitudinal and cross-section and elevation design of the G+2 Residential Building are available in this AutoCAD DWG drawing file. Sectional details are clearly given in this drawing file. In this drawing front and side elevation, Staircase, doors, and windows, are shown. This drawing is useful for civil engineers. Download the AutoCAD 2D DWG file. Thank you so much for downloading DWG file from our website
File Type:
DWG
File Size:
236 KB
Category::
Structure
Sub Category::
Section Plan CAD Blocks & DWG Drawing Models
type:
Gold

Uploaded by:
AS
SETHUPATHI

